Looking for reliable structural steel solutions that meet strict Australian and New Zealand standards? Our AS/NZS 3679.1 H Beams deliver exceptional performance for your most demanding construction projects. These high-quality steel bars comply with AS/NZS 3679.1:2016 details, advertising predominant load-bearing capacity and toughness for profound establishment back, marine structures, and trooper pillar applications. Whether you require Widespread Bars (UB) or All inclusive Columns (UC), we give comprehensive arrangements sponsored by decades of building expertise.
Our steel bar collection highlights both All inclusive Pillars and Widespread Columns fabricated to the most elevated Australian and Unused Zealand measures. Each bar experiences thorough quality testing to guarantee ideal execution in challenging environments.
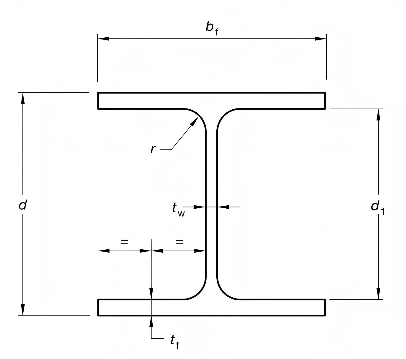
Key Features:

| Size (mm) | Mass (kg/m) | Depth (mm) | Width (mm) | Web Thickness (mm) | Flange Thickness (mm) |
|---|---|---|---|---|---|
| 150UB14.0 | 14.0 | 150 | 75 | 4.5 | 9.0 |
| 200UB18.2 | 18.2 | 200 | 100 | 5.0 | 8.0 |
| 250UB25.7 | 25.7 | 250 | 125 | 6.0 | 8.0 |
| 310UB32.0 | 32.0 | 310 | 165 | 5.8 | 9.7 |
| 360UB44.7 | 44.7 | 360 | 172 | 6.9 | 12.7 |
| 410UB53.7 | 53.7 | 410 | 178 | 7.6 | 14.4 |
| 460UB67.1 | 67.1 | 460 | 190 | 8.5 | 16.0 |

| Size (mm) | Mass (kg/m) | Depth (mm) | Width (mm) | Web Thickness (mm) | Flange Thickness (mm) |
|---|---|---|---|---|---|
| 150UC23.4 | 23.4 | 152 | 152 | 6.4 | 9.4 |
| 200UC46.2 | 46.2 | 203 | 203 | 7.9 | 12.5 |
| 250UC72.9 | 72.9 | 254 | 254 | 8.6 | 17.3 |
| 310UC96.8 | 96.8 | 314 | 314 | 9.9 | 17.3 |
| 350UC115 | 115 | 355 | 368 | 10.7 | 16.7 |
| 400UC132 | 132 | 400 | 400 | 13.5 | 21.6 |
Material Specifications:
Performance Standards:


Deep Foundation Support
Our pillars give extraordinary solidness for uncovering back frameworks and holding divider applications. The vigorous plan handles critical horizontal loads whereas keeping up basic integrity.
Marine Structures
Coastal and offshore projects benefit from our corrosion-resistant treatments. These AS/NZS 3679.1 H Beams withstand harsh marine environments while delivering long-term reliability.
Soldier Beam & Lagging Systems
Construction projects requiring temporary or permanent earth retention rely on our precise dimensional accuracy and consistent quality standards.
Infrastructure Development
Bridges, commercial buildings, and industrial facilities utilize our beams for primary structural support where safety and performance are paramount.
Comprehensive Quality Assurance
Each column comes with full traceability documentation and third-party appraisal certificates.Our thorough testing conventions guarantee you get items that surpass industry standards.
Extensive Inventory
We maintain substantial stock levels across all popular sizes and grades. This means faster project starts and reduced downtime for your construction schedule.
Global Delivery Network
With strategically located warehouses and shipping partnerships, we deliver worldwide within 7-45 days. Our logistics team coordinates seamlessly with your project timeline.
Engineering Expertise
Backed by Tianjin Xinyue Steel Group's 40+ years of manufacturing experience, we provide technical support throughout your project lifecycle.
Customization Capabilities
Need particular lengths, gap designs, or surface medicines? Our manufacture offices can customize pillars to meet your correct specifications.
Q: What's the distinction between UB and UC sections?
A: Widespread Bars (UB) have more prominent profundity than width, perfect for traversing applications. Widespread Columns (UC) have comparative profundity and width measurements, idealize for compression loads.
Q: How do I select the right fabric grade?
A: Review 300 arrangement offers great general-purpose execution. Review 350 gives higher quality for heavy-duty applications. L0/L15 variations include affect sturdiness for extraordinary conditions.
Q: Do you give process test certificates?
A: Yes, each shipment incorporates total documentation with process test certificates, dimensional review reports, and fabric traceability records.
Q: What surface medications are available?
A: We offer hot-dip galvanizing, defensive coatings, and specialized marine-grade medicines to amplify benefit life in destructive environments.
Q: Can you cut pillars to particular lengths?
A: Completely. Our creation offices can cut, bore, and adjust item agreeing to your drawings and specifications.
Q: What's your least arrange quantity?
A: MOQ changes by measure and grade.
Ready to strengthen your next project, including AS/NZS 3679.1 H Beams? Contact us at sales@hypile.com for detailed quotations and technical support. Our team is ready to help you select the perfect beam solution.
Have a project in mind? Tell us your goals — we’ll help you make it real.